Dodaj produkty podając kody
Dodaj plik CSV
Wpisz kody produktów, które chcesz zbiorczo dodać do koszyka (po przecinku, ze spacją lub od nowej linijki).
Powtórzenie wielokrotnie kodu, doda ten towar tyle razy ile razy występuje.
Przedstawione na niniejszej stronie internetowej informacje nie stanowią oferty handlowej w rozumieniu art.66 par.1 Kodeksu Cywilnego.
Konkretne i proste wzornictwo, płaskie wykonanie, duża moc i dowolność pod względem proporcji i wymiarów.
Wyjątkowa technika zaworowa Kermi dająca odczuwalną oszczędność energii. Estetyczny wygląd, skrócony czas montażu i prosta instalacja.
Dyskretne, estetyczne i funkcjonalne rozwiązanie koncepcji architektonicznej.
Pionowe, smukłe wykonanie – estetycznie wykończone za pomocą standardowo montowanej bocznej osłony lub idealne dostosowanie w wersji poziomej – z elegancką osłoną lub bez.
Marka
Symbol
29HHV220493402R4K
Seria
Rodzaj towaru
Grzejniki stalowe płytowe
EAN
4051487186912
Kod producenta
HHV220493402R4K
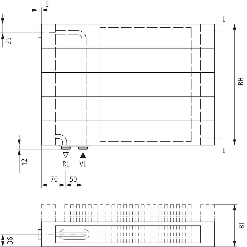
Wysokość [mm]
490
Głębokość [mm]
122
Długość [mm]
3400
Moc cieplna EN 442 20°C - 75/65 [W]
4991
Rodzaj
22
Kolor
Biały
Długość towaru w centymetrach
350
Wysokość towaru w centymetrach
51.5
Szerokość towaru w centymetrach
14.2
Strona www producenta
www.kermi.pl
Zapytaj o produkt
Napisz swoją opinię
















