Dodaj produkty podając kody
Dodaj plik CSV
Wpisz kody produktów, które chcesz zbiorczo dodać do koszyka (po przecinku, ze spacją lub od nowej linijki).
Powtórzenie wielokrotnie kodu, doda ten towar tyle razy ile razy występuje.
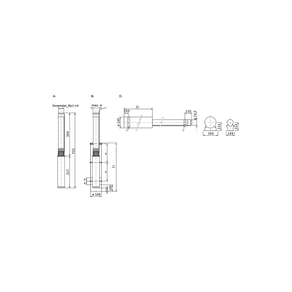
Pompa głębinowa 1-fazowa WILO Sub TWU 3.02-06-HS-ECP-B częstotliwość 50/60 Hz, moc 0.9 kW 10.4 A, prędkość obrotowa 8400 obr/min
Przedstawione na niniejszej stronie internetowej informacje nie stanowią oferty handlowej w rozumieniu art.66 par.1 Kodeksu Cywilnego.
Odporny na korozję silnik z magnesu trwałego do rozruchu bezpośredniego podłączany do dostarczonej przetwornicy częstotliwości. Wypełniony olejem silnik z samosmarującymi łożyskami, przystosowany do dużych prędkości obrotowych maks. do 8400 1/min.
Przez pracę z przetwornicą częstotliwości prędkość obrotowa urządzenia zostaje automatycznie dostosowana do chwilowego zapotrzebowania na wodę. W ten sposób pompa głębinowa zapewnia zawsze stałe ciśnienie. Silnik i przetwornica częstotliwości chłodzone są przez przetłaczane medium. Dlatego podczas pracy urządzenie musi być zawsze zanurzone. W przypadku montażu pionowego zależnie od średnicy studni należy stosować płaszcz chłodzący. Przy montażu poziomym płaszcz chłodzący jest zawsze konieczny. Aby umożliwić chłodzenie, przetwornica częstotliwości powinna być zamontowana bezpośrednio na rurociągu poza przetłaczanym medium (w sposób uniemożliwiający zalanie)! Do tłoczenia wody ze studni głębinowych przy maksymalnej głębokości zanurzenia 150 m i max. zawartości piasku 50 g/m³.
Zakres dostawy
*Hydraulika razem z silnikiem gotowe do instalacji
*Przetwornica częstotliwości
*Kabel zasilający z atestem do wody użytkowej
*Instrukcja montażu i obsługi
Dane eksploatacyjne
*Wysokość podnoszenia maks.: 10,395049 m
Jednostka
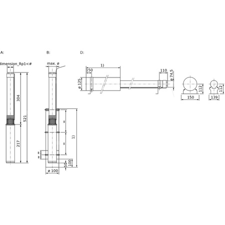
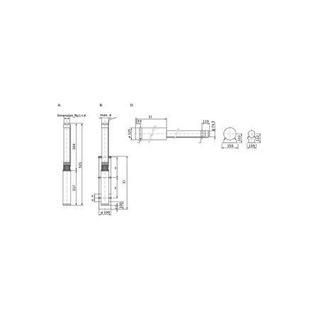
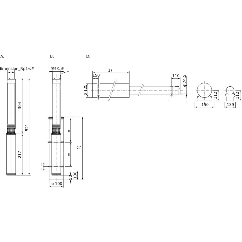
*Przyłącze gwintowane po stronie tłocznej: Rp 1
*Maks. ciśnienie robocze: 40 bar
*Maks. zawartość piasku: 50
*Stopień ochrony silnika:
*Maks. głębokość zanurzenia: 15 m
*Min. temperatura przetłaczanej cieczy: 3 oC
*Maks. temperatura przetłaczanej cieczy: 35 oC
*Masa netto ok.: 5,1 kg
Dane silnika
*Przyłącze sieciowe:
*Znamionowa moc silnika: 900
*Znamionowa prędkość obrotowa: 8400 Obroty / min
*Prąd znamionowy: 10,4 A
*Rodzaj załączania: Bezpośrednio online (DOL)
*Maks. częstotliwość załączania: 30
*Średnica silnika: 76,199959 mm
*Min. prędkość przepływu na silniku: 0,08 m/s
Przewód
*Długość kabla zasilającego: 1,75 m
*Przekrój przewodu: 4G1,5 mm²
Materiały
*Korpus pompy: Stal nierdzewna
*Materiał silnika: Stal nierdzewna
*Wał: Stal nierdzewna
*Wirnik:
Informacje na temat umiejscowienia zamówień
*Masa netto ok.: 5,1 kg
*Produkt:
*Nazwa produktu: Sub TWU 3.02-06-HS-ECP-B
*Numer artykułu: 6079397
Marka
Kod IK
Symbol
816079397
Rodzaj towaru
Pompy do wody użytkowej
EAN
4048482654003
Kod producenta
6079397
Prąd znamionowy [A]
10.4
Moc oddawana silnika (P2) [kW]
0.9
Prędkość obrotowa [obr/min]
8400
Materiał wirnika
Inne
Częstotliwość
50/60 Hz
Stopień ochrony (IP)
IP58
Klasa izolacji wg IEC
F
Podłączenie elektryczne
Przewód połączeniowy z wtyczką
Liczba faz
1
Zakres napięcia znamionowego [V]
230
Maks. ciśnienie robocze [bar]
11.66
Maksymalna liczba cykli pracy [c/h]
30
Średnica zewnętrzna przyłącza od strony wylotowej [mm]
25
Maks. wydajność (maks. przepływ) [m³/h]
5.04
Maks. wysokość podnoszenia [m]
107
Przepływ nominalny (BEP) [m³/h]
3.021
Wysokość podnoszenia przy przepływie nominalnym (BEP) [kPa]
519.26
Materiał korpusu pompy
Stal nierdzewna
Gatunek materiału korpusu pompy
Stal nierdzewna 304
Gatunek materiału wirnika
PVC-C
Przyłącze po stronie wylotowej
Gwint wewnętrzny gazowy stożkowy
Średnica nominalna przyłącza od strony wylotowej
1 cal
Klasa ciśnienia kołnierza przyłącza wylotowego
PN 10
Kształt końcówki
Inne
Głębokość zanurzenia [m]
150
Maks. zawartość piasku [g/m³]
50
Długość towaru w centymetrach
16.1
Wysokość towaru w centymetrach
17.4
Szerokość towaru w centymetrach
100
Strona www producenta
www.wilo.pl
Zapytaj o produkt
Napisz swoją opinię














