Dodaj produkty podając kody
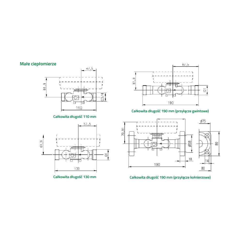
Ciepłomierz UH50 qp 3,5 m3/h, czujniki Jumo Pt500 5,2x45 mm L = 3,0 m, osłony L = 63 mm, śrubunek 1"
Przedstawione na niniejszej stronie internetowej informacje nie stanowią oferty handlowej w rozumieniu art.66 par.1 Kodeksu Cywilnego.
Ciepłomierz przeznaczony jest do pomiaru zużycia ciepła w węzłach cieplnych lub instalacjach centralnego ogrzewania. Może być stosowany do pomiaru ilości ciepła, ciepła i chłodu – wersja kombi, lub jako licznik chłodu (montaż wyłącznie na powrocie) w instalacjach, w których medium jest woda.
Łączy w sobie wykorzystanie nowoczesnej technologii mikroprocesorowej z technologią ultradźwiękową, w wyniku czego uzyskano niezwykłą trwałość urządzenia oraz bardzo wysoką dokładność i stabilność pomiarów w całym cyklu życia urządzenia. Ciepłomierz T550 zapewnia bezawaryjną pracę i wiarygodność pomiaru zużytego ciepła przez długi czas. Ilość energii cieplnej obliczana jest wg. algorytmu opisanego w normie EN1434-1:2004, jako iloczyn różnicy temperatur, objętości wody grzewczej, oraz współczynnika ciepła właściwego wody.
Objętość czynnika grzewczego jest mierzona metodą ultradźwiękową co 2 lub 4 sekundy, a temperatury zasilania i powrotu mierzone są czujnikami wyposażonymi w rezystory platynowe co 8 lub 30 sekund (w zależności od typu zastosowanych czujników temperatury i sposobu zasilania). Ilość ciepła obliczana jest w Wh, ale rejestrowana i wyświetlana w GJ.













