Dodaj produkty podając kody
Przedstawione na niniejszej stronie internetowej informacje nie stanowią oferty handlowej w rozumieniu art.66 par.1 Kodeksu Cywilnego.
Zastosowanie:
Ciepłomierz służy do pomiaru energii cieplnej, energii chłodu lub w wersji hybrydowej umożliwia łączony pomiar ciepła i chłodu. Główne obszary zastosowania to instalacje centralnego ogrzewania, układy chłodnicze lub układy hybrydowe. Licznik może pracować w układach, w których czynnik grzewczy/chłodniczy stanowi woda lub woda lodowa.
Opis produktu:
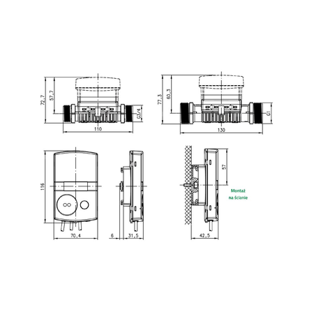
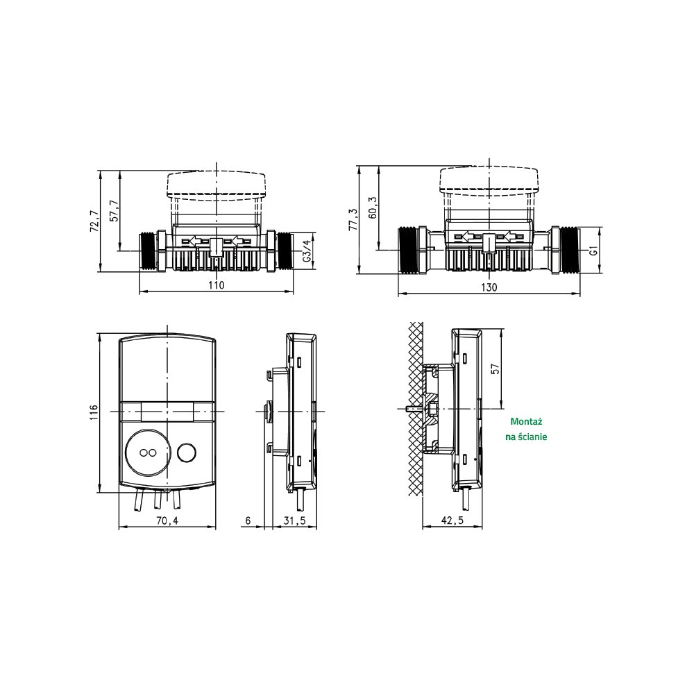
Kompaktowy ultradźwiękowy ciepłomierz T230 przeznaczony jest do pomiaru przepływu i zużycia ciepła w mieszkaniowych instalacjach grzewczych, w których medium jest woda. Dostępny jest również jako licznik chłodu.
Ciepłomierze T230 mierzą przepływ w oparciu o metodę ultradźwiękową, dzięki której charakteryzują się wysoką dokładnością pomiarów, są długotrwale stabilne i pozbawione łatwo zużywających się elementów mechanicznych. Urządzenie składa się z przetwornika przepływu, dwóch czujników temperatury oraz z układu elektronicznego obliczającego zużycie energii z objętości medium oraz różnicy temperatur. Przetwornik przepływu wykonany jest z najwyższej jakości tworzywa sztucznego, zapewniającego stałą jakość i powtarzalność wyrobu.
Cechy szczególne:
Przepływy nominalne 0,6 / 1,5 / 2,5 m3/h.
Brak elementów ruchomych.
Dostępna dynamika pomiaru qmin:qs = 1:1000.
Adaptacja okresu pomiaru temperatury i kalkulacji w zależności od rzeczywistych warunków pracy licznika.
Dowolne położenie montażowe.
Łatwy montaż i odczyt z dużego czytelnego wyświetlacza oraz za pomocą głowicy optycznej.
Pomiar maksymalnej mocy i przepływu (wartości średnie).
Pomiar maksymalnych temperatur (wartości rzeczywiste).
Pamięć wartości miesięcznych z ostatnich 24 miesięcy.
Dwa dni bilansu miesięcznego.
Zasilanie z baterii o żywotności 6 lub 11 lat.
Interfejs optyczny zgodny z EN 62056-21.
Moduł M-bus (wg EN 1434-4).
Moduł wireless M-bus 868 MHz OMS T1.
Moduł z 2 wyjściami impulsowymi CE/CV.
Autodiagnostyka stanu urządzenia, sygnalizacja błędów.
Zgodność z normami EN 1434 klasa 2 lub 3 oraz MID (dyrektywa europejska 2004/22/WE).
Zatwierdzenie MID DE-11-MI004-PTB003.





















