Dodaj produkty podając kody
Przedstawione na niniejszej stronie internetowej informacje nie stanowią oferty handlowej w rozumieniu art.66 par.1 Kodeksu Cywilnego.
Lepsze pod każdym względem
Produkty ProSys™ to komplet rozwiązań instalacyjnych do łazienki, przeznaczonych do toalet, bidetów, umywalek, pisuarów i pryszniców.
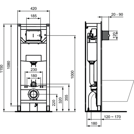
Do miski wiszącej WC, wolnostojący, mechaniczny s. spłukujący. Podtynkowa instalacja, montaż do posadzki. Wsporniki mocowania do posadzki z dwoma punktami montażu. Stelaż testowany na obciążeniu 400 kg. Rama zabezpieczona i odporna na korozję. Szybka instalacja z systemem EasyFix. Regulacja głąbokości montażu i kierunku kolana rury odpływowej. Wsporniki z blokadą ułatwiającą montaż i regulacją wysokości w zakresie od 0 do 200 mm. Minimalna głębokość montażu 180 mm. Mechaniczny system spłukujący, możliwość zastosowania pneumatycznego lub elektronicznego systemu spłukującego (wraz z zamawianym oddzielnie zestawem do montażu przycisku). Spłukiwanie 2 funkcyjne, fabryczne ustawienie 6/3 l. Regulacja spłukiwania: 4/2 i 6/3 l. Zbiornik spłukujący wykonany z polipropylenu (PP), odporny na temperaturę, wyposażony w obudowę antykondensacyjną. Zawór SmartValve (oszczędność do 9 l wody/dzień), oznaczenie CE EN 14055 CL1, cichy zawór, zgodny ze standardami NF, klasa akustyczna pracy I, głębokość zbiornika 120 mm, 2 punktów przyłącza wody. Elementy w komplecie: Standardowy zestaw montażowy do miski. Kompletny zestaw montażowy do stelaża, wraz ze wspornikami ściennymi. Komplet przyłączeniowy do miski WC (rura odpływowa i dopływowa). Kolano odpływowe ø90/100. Gumowa uszczelka do miski ø 45. Zaślepka montażowa do systemu spłukującego. Zawór zamykający G ½". W przypadku otworu odpływowego o śr. Ø110 mm, należy zamówić dodatkowo: Rura odpływu Ø90x90 mm RV18067. Rura redukcyjna Ø90- Ø110 mm RV18167. Do skompletowania z zamawianymi oddzielnie przyciskami spłukującymi i zestawami do montażu przycisków.
- Typ: Wolnostojące Stelaże do WC
- Sposób działania: Mechaniczna
- Instalacja: Sucha zabudowa
- Min. głębokość: 180 mm
- Pojemność: 4 Litry (L)
- Dodatkowa pojemność: 2 Litry (L)
- Kolekcja: ProSys
- Wysokość: 1150 mm
- Szerokość: 420 mm
- Głębokość: 180 mm
- Materiał: Kompozyt
- Montaż: Kompakt WC wiszący
- Waga netto: 15.65 kg
- Sektor: Budownictwo mieszkaniowe, Hotelarstwo, Biuro, Opieka zdrowotna, Edukacja, Relaks
- Technologia: Smart Valve














