Dodaj produkty podając kody
Przedstawione na niniejszej stronie internetowej informacje nie stanowią oferty handlowej w rozumieniu art.66 par.1 Kodeksu Cywilnego.
Lepsze pod każdym względem
Produkty ProSys™ to komplet rozwiązań instalacyjnych do łazienki, przeznaczonych do toalet, bidetów, umywalek, pisuarów i pryszniców.
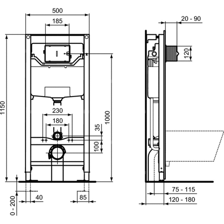
Przeznaczony do stosowania z wiszącymi miskami WC. Do montażu przed litą ścianą lub pomiędzy dwoma lekkimi ścianami z płyt gipsowo-kartonowych, zgodnie z instrukcją obsługi. Rama przetestowana na obciążenie 400 kg. Rama odporna na korozję i zarysowania. Łatwy i szybki montaż dzięki systemowi EasyFix. Kolanko odpływowe kierunkowe, regulowana głębokość. Wysokość regulowana w zakresie od 0 do 200 mm, nogi o szybko regulowanej wysokości ze wspornikami umożliwiającymi montaż przez jedną osobę. Minimalna grubość 120 mm. Wbudowany zbiornik z mechanicznym uruchamianiem z przodu, możliwa transfromacja pneumatyczna lub elektroniczna za pomocą zestawów dostępnych jako oddzielne zamówienie. Podwójne spłukiwanie, wstępnie ustawione na 6/3 l, prosta regulacja w celu zmniejszenia pełnego spłukiwania z 6 do 4,5 l. Zbiornik z polipropylenu (PP) bardzo odporny i niewzruszony na naprężenia termiczne, dostarczany z wykładziną antykondensacyjną. SmartValve (oszczędność do 9 litrów wody dziennie), znak CE EN 14055 CL1, cichy zawór zgodny z normą NF kategorii klasy I, zbiornik o grubości 120 mm, 2 przyłącza wody. Akcesoria w zestawie: - Osprzęt do mocowania miski toaletowej. Materiały do mocowania stelażu. Przyłącze miski WC dopływowe i odpływowe. Kolanko odpływowe i adapter Ø 90/110 mm. Uszczelka gumowa miski WC Ø 45 mm. Ochronna obudowa. Zawór zamykający G ½". Do montażu z płytami sterującymi (osobne zamówienie).
- Typ: Stojące stelaże do WC
- Sposób działania: Mechaniczna
- Instalacja: Lita zabudowa, Sucha zabudowa
- Min. głębokość: 120 mm
- Kolekcja: ProSys
- Wysokość: 1350 mm
- Szerokość: 500 mm
- Głębokość: 120 mm
- Waga netto: 13.24 kg
- Sektor: Hotelarstwo, Budownictwo mieszkaniowe, Biuro, Relaks












